
2003
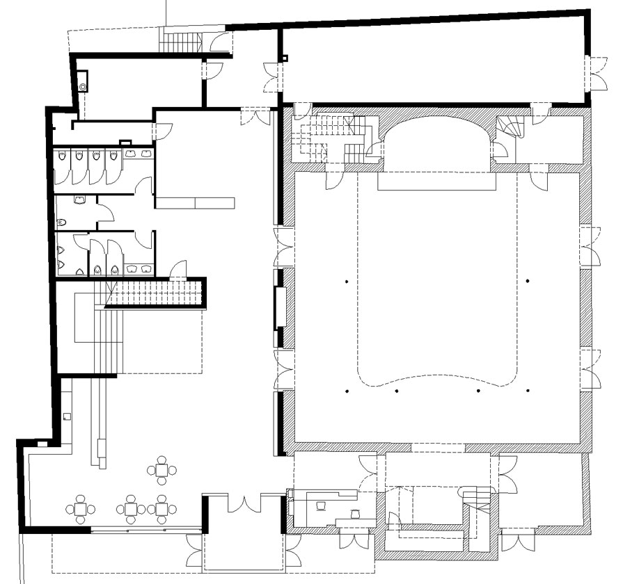
Der Jugendstilsaal in Ziersdorf, errichtet von einem unbekannten Baumeister Anfang des 20. Jahrhunderts
Der lange Zeit leerstehende und als Lager verwendete Saal wurde revitalisiert und mit einem Zubau erweitert. Die aus Kalk-Gipsputz bestehende stuckähnliche Oberfläche wurde aufwendig restauriert und in ihren Originalzustand gebracht. Da die Galerie heutigen Vorschriften entsprechend nicht mehr tragfähig war, wurde sie statisch verstärkt, ohne aber die Zartheit des historischen Bauteiles zu verändern.
Heute stehen neben dem historischen Saal in dem sehr sachlich gehaltenen Zubau noch 2 Seminarräume, Garderoben für Besucher und Künstler, eine Foyer mit einer Bar und div. Nebenräume zur Verfügung. Gemeinsam mit der technischen Ausstattung ist eine vielfältige Bespielung des Ensembles möglich.
Zusammen mit den wenigen vergoldeten Dekoren strahlt der Saal den Glanz der Jahrhundertwende Wiens aus, in Verbindung mit dem Anbau ist eine multifunktionelle Eventlocation entstanden.
Mitarbeiter
Peter Turner, Martina Lindner, Michaela Chaloupek
Statik
iC consulenten ZT GmbH
Gebäudetechnik
iC consulenten ZT GmbH
Nutzfläche 1.200 m2
Bauvolumen netto Euro 2,6 Mill.
Foto
© Pez Hejduk
© Bruno Klomfar
Standort
Ziersdorf, Horner Straße 7
Bauherr
Marktgemeinde Ziersdorf